Ferienhaus - 6 Personen - Oddervej - Rubjerg - 9480 - Lökken
Alternative Objekte
In der Nähe (167)Übersicht
- Schlafzimmer 2
- Badezimmer 1
- Wohnfläche 69 m²
- Grundstück 5.506 m²
- Haustiere Nicht erlaubt
- Kurzurlaub möglich Ja
- Entfernung Wasser 875 m
- Einkaufen 4.500 m
- Internet Ja
- Satelliten-/Kabel TV Ja
- Kaminofen Ja
- Waschmaschine Ja
- Geschirrspüler Ja
- Nichtraucher Ja
- Ladestation für Elektroauto Ja
- Klimafreundlich Ja
Beschreibung
Wenn der Urlaub in einer idyllischen und gemütlichen Umgebung stattfinden soll, lohnt es sich, einen genaueren Blick auf Oddervej 4 in der Nähe von Rubjerg Knude und der Nordsee zu werfen. Dieses schöne Holzferienhaus bietet eine wunderbare Atmosphäre und eine herrlich helle Einrichtung, und auf dem großen Naturgrundstück gibt es viel Platz zum Entspannen und Genießen des Urlaubslebens.
Willkommen in deinem Ferienhaus
Die 69 m² große Ferienwohnung hat eine helle und freundliche Ausstrahlung, die Lust macht, sich direkt mit dem Strickzeug, einem guten Buch oder einem Film aufs Sofa zu setzen. Im Wohnzimmer gibt es auch die Möglichkeit, den Kamin anzuzünden, bevor ihr Karten spielt oder euch ein Nickerchen in der Alkove gönnt – mit anderen Worten: genau so, wie ein richtiges Ferienhaus sein sollte! Das Wohnzimmer ist offen mit der gut ausgestatteten Küche verbunden, und das geräumige Badezimmer verfügt über eine Dusche und eine Waschmaschine. Der stilvolle Einrichtungsstil des Hauses setzt sich auch in den beiden Schlafzimmern fort. Die Alkove kann ebenfalls als Schlafplatz genutzt werden, sodass insgesamt vier Erwachsene und zwei Kinder im Inneren Platz finden.
Genieße das Leben im Freien
Draußen habt ihr die Wahl zwischen zwei schönen Terrassen. Im Nordosten könnt ihr euren Morgenkaffee auf der offenen Terrasse trinken, und später könnt ihr auf die südwestlich gelegene Terrasse umziehen, die teilweise überdacht ist und sich daher auch abends gut eignet. Wollt ihr unter freiem Himmel kochen, könnt ihr den Grill anfeuern, während ihr den Tisch deckt und die Gläser füllt. Für die Kinder gibt es reichlich Platz zum Spielen, und die Randbepflanzung umrahmt das Grundstück auf wunderschöne Weise.
Entdecke deine Umgebung
Das ruhige Ferienhausgebiet Nr. Rubjerg ist das perfekte Ziel für alle, die Ruhe und Entspannung suchen. Auch wenn ihr gerne wandert und draußen in der Natur seid, seid ihr hier genau richtig, denn von Oddervej aus habt ihr einfachen Zugang zu einem Wegenetz, das euch durch die schöne Landschaft direkt bis zur Küste führt. Die steilen Klippen der Umgebung schaffen einen scharfen Übergang zum Strand – besonders bei Rubjerg Knude, einer beeindruckenden Wanderdüne in der Nähe des Hauses. Wollt ihr ganz hinunter, um die Nordsee zu begrüßen, könnt ihr die nächste Treppe nehmen, es sei denn, ihr zieht es vor, nach Lønstrup, Nr. Lyngby oder in eines der anderen gemütlichen Küstendörfer zu fahren.
Denkt daran, dass ihr bei uns in Løkken immer Bollerwagen, Hochstühle und Kinderbetten ausleihen könnt. Ihr könnt sie direkt im Büro abholen und nach eurem Urlaub wieder bei uns abgeben.
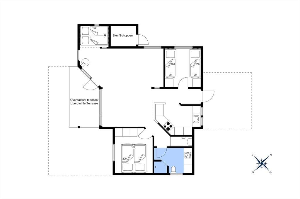
Raumaufteilung
- Schlafzimmer
- Einzelbett - 1x90x200
- Einzelbett - 1x90x200
- Schlafzimmer
- Doppelbett - 1x180x200
- Badezimmer
- Wohnzimmer
- Alkoven
- Doppelbett - 1x140x190
- Wohnküche
Unsere Gästebewertungen Externe Bewertungen
Gesamte Ausstattung
-
Hausinfo.
-
Anzahl der Kinder2
-
Anzahl Erw.4
-
Baujahr2007
-
Grundstücksgröße5506 m²
-
Hausareal69 m²
-
-
Entfernungen
-
Entfernung Einkauf / Ganzjahresgeschäft4,5 km
-
Entfernung Strand / Sandstrand875 m
-
-
Energie/Heizung
-
Kaminofen
-
Wärmepumpe / Ohne Kühlung
-
-
Küchengeräte
-
Abzugshaube
-
Backofen
-
Kaffeemaschine
-
Kochplatten
-
Kühlschrank m/Gefrierfach
-
Mikrowelle
-
Spülmaschine
-
Waschmaschine
-
Wasserkocher
-
-
Multimedien
-
Apple TV
-
Chromecast
-
Deutsche Kanäle
-
Dän. TV
-
Kostenloses WLAN - mehr als 100 Mbit
-
Parabol
-
TV
-
-
Extra
-
Für Wanderer
-
-
Draußen
-
Gartenmöbel
-
Grill
-
Liegestühle2
-
Parken auf dem Grundstück
-
Sonnenschirm
-
Terrasse
-
-
Diverse
-
Fußbodenheizung
-
Markierte Wanderwege in der Nähe
-
Wäscheständer / Wäscheleine
-
-
Regeln
-
Aufladen des Elektroautos erlaubt / Ladegerät für Elektroauto verfügbar (Typ 2 Stecker, inkl. Kabel)
-
HAUSTIER NICHT ERLAUBT
-
Rauchen verboten
-
-
Preis inbegriffen
-
Endreinigung inkl.
-
Wasser inkl.
-
Kurzurlaub
Preise und Kalender
Kalender
Preis
- Ankunft
- Abreise
- Dauer
- 1 Woche
