Ferienhaus - 5 Personen - Morgenvej - Nörlev - 9800 - Hjörring
Alternative Objekte
In der Nähe (293)Übersicht
- Schlafzimmer 3
- Badezimmer 1
- Wohnfläche 70 m²
- Grundstück 200 m²
- Haustiere 2
- Kurzurlaub möglich Nein
- Entfernung Wasser 25 m
- Einkaufen 620 m
- Internet Ja
- Satelliten-/Kabel TV Ja
- Kaminofen Ja
- Wasserblick Ja
- Klimaanlage Ja
- Waschmaschine Ja
- Geschirrspüler Ja
- Nichtraucher Ja
- Ladestation für Elektroauto Ja
- Klimafreundlich Ja
Beschreibung
Hier kann wirklich von einem Panoramablick aus nächster Nähe gesprochen werden!
Eines der Naturwunder ist die Küste bei Lønstrup und Nørlev, die sich jedes Jahr im Takt mit Wind und Wetter verändert. Früher lag das Haus einige Meter vom Strand entfernt, jetzt befindet sich Ferienhaus im Morgenvej 4 ganz in der Nähe - Sie wohnen sozusagen fast am Strand.
Willkommen in deinem Ferienhaus
Vom Eingangsbereich führt ein Zugang in den Wohnbereich, der offen mit der Küche kombiniert ist. In der Küche befindet sich auch eine Waschmaschine. Es sind ein schönes Badezimmer sowie drei Schlafzimmer vorhanden. Vom Wohnbereich und der Küche können Sie den Ausblick in vollen Zügen genießen. Das Haus ist mit hellen und praktischen Möbeln ausgestattet.
Genieße das Leben im Freien
Das Haus verfügt über eine schöne und komplett geschlossene Terrasse, so dass Sie sich relativ ungestört, von den Strandbesuchern aufhalten können. Vor dem Ferienhaus kann die Morgensonne beobachtet werden. Das Haus liegt auf einem Dünengrundstück. Ein paar Meter rechts vom Haus entfernt befindet sich eine Treppe, die hinunter zum Strand führt.
Entdecke deine Umgebung
Näher an den Strand kommen Sie nicht! Es gibt nichts schöneres als morgens mit dem Rauschen und Duft des Meeres aufzuwachen, und den Schiffsverkehr am Horizont zu beobachten. Skallerup Seaside Resort ist zu Fuss zu erreichen, das Aktivitäten für die ganze Familie anbietet. Empfehlenswert ist auch ein Besuch des gemütlichen Ortes Lønstrups mit spannenden Kunsthandwerkern, gemütlichen Cafés und tollen Gourmetrestaurants.
Denk daran, dass du bei Lønstrup jederzeit Bollerwagen, Hochstühle und Kinderreisebetten leihen kannst. Diese holst du direkt bei uns im Büro ab und bringst sie wieder, wenn du deine Heimreise antrittst.
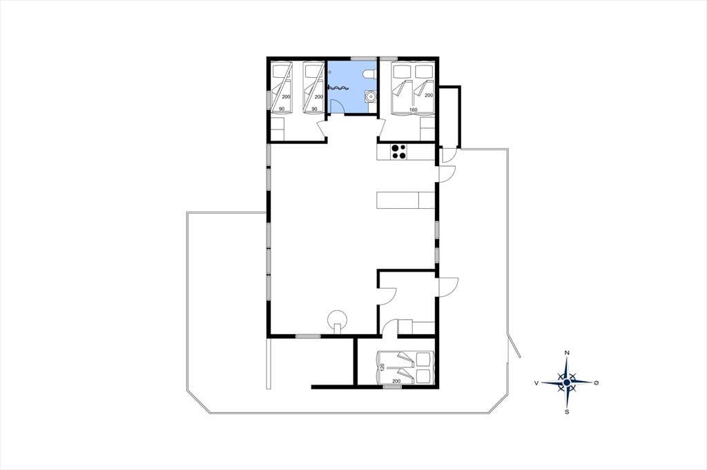
Raumaufteilung
- Schlafzimmer
- Einzelbett - 80x200
- Einzelbett - 80x200
- Schlafzimmer
- Doppelbett - 160x200
- Schlafzimmer
- Einzelbett - 120x200
Unsere Gästebewertungen Externe Bewertungen
Gesamte Ausstattung
-
Hausinfo.
-
Anzahl Erw.5
-
Anzahl Haustiere2
-
Baujahr1986
-
Dusche
-
Grundstück / Naturgrund200 m²
-
Hausareal70 m²
-
Meerblick
-
WC
-
-
Entfernungen
-
Entfernung Einkauf / Ganzjahresgeschäft620 m
-
Entfernung Restaurant620 m
-
Entfernung Strand / Sandstrand25 m
-
Entfernung zum Golfplatz4,7 km
-
-
Energie/Heizung
-
Elektroheizung
-
Kaminofen
-
Wärmepumpe / Mit Kühlung
-
-
Küchengeräte
-
Abzugshaube
-
Bügelbrett
-
Bügeleisen
-
Herd
-
Kaffeemaschine
-
Kühlschrank m/Gefrierfach
-
Spülmaschine
-
Waschmaschine
-
Wasserkocher
-
-
Multimedien
-
Deutsche Kanäle
-
Dän. TVGoogle TV-Box
-
Gratis Wi-Fi - Über 20 Mbit
-
Kabel TV
-
Norw. TV
-
Schwedisches TV
-
TV
-
-
Extra
-
Golf-Urlaub
-
-
Draußen
-
2 x Terrasse
-
Gartenmöbel
-
Grill
-
Liegestühle2
-
Parken auf dem Grundstück
-
-
Regeln
-
Aufladen des Elektroautos erlaubt / Ladegerät verfügbar (Typ 2 Stecker, Kabel mitbringen)
-
Haustiere: nur Hunde erlaubt
-
Rauchen verboten
-
-
Preis inbegriffen
-
Endreinigung inkl.
-
Preise und Kalender
Kalender
Preis
- Ankunft
- Abreise
- Dauer
- 1 Woche
