Familienfreundliches Aktivitätshaus mit Pool
Ferienhaus - 12 Personen - Blommestien - Marielyst - 4872 - Idestrup
Alternative Objekte
In der Nähe (378)12 Personen
Übersicht
Objekt Nr.: 121-82-0910
7 Übernachtungen
Ab
EUR 1.497,-
Inkl. Endreinigung
Familienfreundliches Ferienhaus in Marielyst mit Innenpool, Whirlpool und vielfältigen Freizeitangeboten für einen unvergesslichen Urlaub.
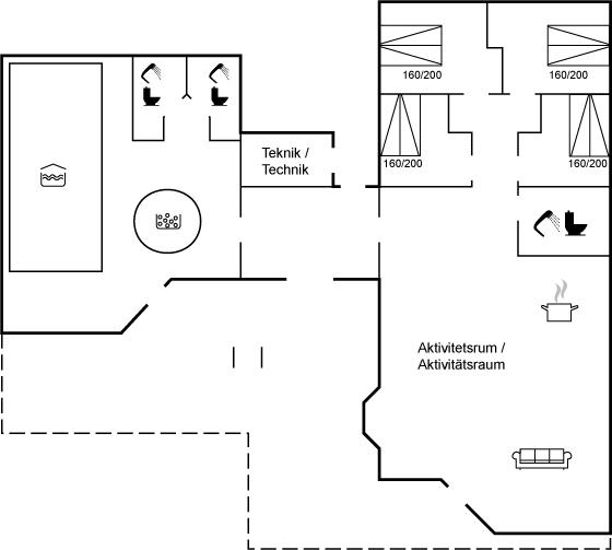
- Schlafzimmer 4
- Badezimmer 3
- Wohnfläche 185 m²
- Grundstück 1.690 m²
- Haustiere Nicht erlaubt
- Kurzurlaub möglich Ja
- Entfernung Wasser 800 m
- Einkaufen 400 m
- Swimmingpool innen Ja
- Whirlpool Ja
- Internet Ja
- Satelliten-/Kabel TV Ja
- Spiel- und Sportzimmer Ja
- Waschmaschine Ja
- Trockner Ja
- Geschirrspüler Ja
- Nichtraucher Ja
- Klimafreundlich Ja
Beschreibung
Ein schönes und familienfreundliches Ferienhaus mit Innenpool und Whirlpool sowie einem Angebot aus verschiedenen Indoor-Aktivitäten. Das Ferienhaus bietet mit einem Fußballtor und einem Minigolfplatz außerdem gute Möglichkeiten für Outdoor-Aktivitäten. Das Ferienhaus ist ein Niedrigenergiehaus, was den Verbrauch senkt. Übrigens: 4 der Schlafplätze befinden sich im offenen Obergeschoss des Hauses.
Einrichtung
Das Ferienhaus eignet sich für 12 Personen. Die Ferienunterkunft hat eine Wohnfläche von 185 m² und wurde 2007 gebaut. 2020 wurde die Ferienunterkunft teilweise renoviert. Haustiere dürfen nicht mitgebracht werden. Die Ferienunterkunft ist mit energiesparender Wärmepumpe ausgestattet. Es gibt Erdwärme. Es gibt Solarwärme. Die Ferienunterkunft ist mit Waschmaschine ausgestattet. Wäschetrockner. Tiefkühlmöglichkeit mit 60 Liter Nutzinhalt. Für die jüngsten Feriengäste sind 2 Kinderhochstühle vorhanden.
Draußen
Die Ferienunterkunft liegt auf einem 1690 m² großen Gartengrundstück. Die Entfernung zum Meer beträgt 800 m. Die nächste Einkaufsmöglichkeit liegt 400 m entfernt. In einem Abstand von 3000 m gibt es einen Golfplatz. Es steht ein offenes sowie 30 m2 überdachtes Terrassenareal zur Verfügung Sandkasten. Fußballtor.Es beteht die Möglichkeit das Essen in der Außenküche zuzubereiten. Es steht ein Grill zur Verfügung. Parkplatz auf dem Grundstück.
Swimmingpool
Im Swimmingpool können sich Jung und Alt gemeinsam Vergnügen. Der Swimmingpool misst bis zu 3 m in der Breite, 6,5 m in der Länge und bis zu 1,2 m in der Tiefe. Die Wassertemperatur liegt zwischen 24 und 28° C.
Hobbyraum
Hobbyraum mit: Billard. Tischtennis. Tischfußball.
Schlafverhältnisse
Die Schlafplätze verteilen sich auf 4 Schlafräume. 8 Schlafplätze in Doppelbetten. 4 Schlafplätze auf Matratzen. 2 von diesen Schlafplätzen befinden sich im offenen Obergeschoss. Ferner stehen 2 Kinderbetten zur Verfügung.
Küche
Die Küche ist mit amerikanischem Kühlschrank ausgestattet. Außerdem gibt es 4 Keramik-Kochfelder, Umluftofen, Mikrowelle sowie Geschirrspüler.
WC und Bad
Es gibt 3 Badezimmer mit Duschnische und 3 Toiletten. Fußbodenheizung in 3 Badezimmern.
Whirlpool
Entspannen Sie sich im Innen-Durchlauf-Whirlpool für 4 Personen.
Multimedien
In der Ferienunterkunft gibt es einen Fernseher. Fernsehen via Streaming. DVD-Player. Radio. Es sind 2 PLaystation3 vorhanden. Mindestens 4 dänische Fernsehsender. 1-3 schwedische Fernsehsender. 1-3 norwegische Fernsehsender. Mindestens 4 deutsche Fernsehsender. Es steht kabellose Internetverbindung zur Verfügung.
Wissenswertes
Keine Vermietung an Jugendgruppen, in denen alle 15-25 Jahre sind. Rauchen ist nicht zugelassen. Bei Nichtbeachtung dieses Verbots wird eine Gebühr von mindestens EUR 420,- erhoben.
Einrichtung
Das Ferienhaus eignet sich für 12 Personen. Die Ferienunterkunft hat eine Wohnfläche von 185 m² und wurde 2007 gebaut. 2020 wurde die Ferienunterkunft teilweise renoviert. Haustiere dürfen nicht mitgebracht werden. Die Ferienunterkunft ist mit energiesparender Wärmepumpe ausgestattet. Es gibt Erdwärme. Es gibt Solarwärme. Die Ferienunterkunft ist mit Waschmaschine ausgestattet. Wäschetrockner. Tiefkühlmöglichkeit mit 60 Liter Nutzinhalt. Für die jüngsten Feriengäste sind 2 Kinderhochstühle vorhanden.
Draußen
Die Ferienunterkunft liegt auf einem 1690 m² großen Gartengrundstück. Die Entfernung zum Meer beträgt 800 m. Die nächste Einkaufsmöglichkeit liegt 400 m entfernt. In einem Abstand von 3000 m gibt es einen Golfplatz. Es steht ein offenes sowie 30 m2 überdachtes Terrassenareal zur Verfügung Sandkasten. Fußballtor.Es beteht die Möglichkeit das Essen in der Außenküche zuzubereiten. Es steht ein Grill zur Verfügung. Parkplatz auf dem Grundstück.
Swimmingpool
Im Swimmingpool können sich Jung und Alt gemeinsam Vergnügen. Der Swimmingpool misst bis zu 3 m in der Breite, 6,5 m in der Länge und bis zu 1,2 m in der Tiefe. Die Wassertemperatur liegt zwischen 24 und 28° C.
Hobbyraum
Hobbyraum mit: Billard. Tischtennis. Tischfußball.
Schlafverhältnisse
Die Schlafplätze verteilen sich auf 4 Schlafräume. 8 Schlafplätze in Doppelbetten. 4 Schlafplätze auf Matratzen. 2 von diesen Schlafplätzen befinden sich im offenen Obergeschoss. Ferner stehen 2 Kinderbetten zur Verfügung.
Küche
Die Küche ist mit amerikanischem Kühlschrank ausgestattet. Außerdem gibt es 4 Keramik-Kochfelder, Umluftofen, Mikrowelle sowie Geschirrspüler.
WC und Bad
Es gibt 3 Badezimmer mit Duschnische und 3 Toiletten. Fußbodenheizung in 3 Badezimmern.
Whirlpool
Entspannen Sie sich im Innen-Durchlauf-Whirlpool für 4 Personen.
Multimedien
In der Ferienunterkunft gibt es einen Fernseher. Fernsehen via Streaming. DVD-Player. Radio. Es sind 2 PLaystation3 vorhanden. Mindestens 4 dänische Fernsehsender. 1-3 schwedische Fernsehsender. 1-3 norwegische Fernsehsender. Mindestens 4 deutsche Fernsehsender. Es steht kabellose Internetverbindung zur Verfügung.
Wissenswertes
Keine Vermietung an Jugendgruppen, in denen alle 15-25 Jahre sind. Rauchen ist nicht zugelassen. Bei Nichtbeachtung dieses Verbots wird eine Gebühr von mindestens EUR 420,- erhoben.
Unsere Gästebewertungen Externe Bewertungen
Gesamte Ausstattung
-
Bitte beachten
-
Aktivitätshaus
-
Keine Arbeiter auf Anfrage
-
Keine Jugendgruppen auf Anfrage
-
Rauchen ist verboten
-
-
Draußen
-
Außenküche
-
Fußballtor
-
Geschäft400 m
-
Golfplatz3 km
-
Grill1
-
Größe des Grundstücks1690 m²
-
Landschaftsgarten
-
Meer800 m
-
Parkplatz beim Haus
-
Sandkasten
-
Terrasse
-
Überdachte Terrasse30 m²
-
-
Einrichtung
-
Anzahl Erwachsene inkl. 4-11 Jahre12
-
Baujahr2007
-
Bebaute Fläche185 m²
-
Erdwärme
-
Ferienhaus
-
Gefrierkapazität (Anzahl Liter)60
-
Hochstuhl2
-
Jahr der Renovierung2020
-
Solarwärme
-
Waschmaschine1
-
Wärmepumpe
-
Wäschetrockner1
-
-
Hobbyraum
-
Billard
-
Sportraum
-
Tischfussball
-
Tischtennis
-
-
Küche
-
Amerikanischer Kühlschrank1
-
Anzahl der Keramikkochplatten4
-
Heißluftofen1
-
Mikrowelle1
-
Spülmaschine1
-
-
Multimedien
-
> 3 deutsche Sender
-
> 3 dänische Sender
-
0-3 norwegische Kanäle
-
0-3 schwedische Kanäle
-
Anzahl der Fernseher1
-
DVD1
-
Internet drahtlos
-
Playstation 3
-
Radio
-
TV durch
-
-
Schlafverhältnisse
-
Anzahl der Schlafzimmer4
-
Doppelbett (Anzahl der Schlafplätze)8
-
Kinderbett2
-
Matratzen (Anzahl der Schlafplätze)4
-
Schlafempore (Anzahl der Schlafplätze)
-
Schlafmöglichkeit nicht im Schlafzimmer
-
-
Swimmingpool
-
Hallenbad
-
Schwimmbadbreite3
-
Schwimmbadlänge6,5
-
Schwimmbadtiefe1,2
-
-
WC und Bad
-
Anzahl der Badezimmer3
-
Duschkabine
-
Fußbodenheizung3
-
Toiletten3
-
-
Whirlpool
-
Innen-Whirlpool (Anzahl Personen)4
-
Kurzurlaub
Es besteht eine begrenzte Möglichkeit das ganze Jahr einen Kurzurlaub zu machen, typischerweise ausserhalb der Hochsaison.
Preise und Kalender
Kalender
Dauer
Preis
Zeitraum
- Ankunft
- Abreise
- Dauer
- 1 Woche
Personen
Bis zu 12 Personen
Bitte beachten
Ankunftszeit wurde nicht ausgewählt.
