Ferienhaus - 6 Personen - Hvidtjørnvænget - Marielyst - 4872 - Idestrup
Alternative Objekte
In der Nähe (437)Übersicht
- Schlafzimmer 2
- Badezimmer 1
- Wohnfläche 84 m²
- Grundstück 1.219 m²
- Haustiere 2
- Kurzurlaub möglich Ja
- Entfernung Wasser 250 m
- Einkaufen 1 km
- Internet Ja
- Kaminofen Ja
- Nichtraucher Ja
Beschreibung
Willkommen in deinem Ferienhaus
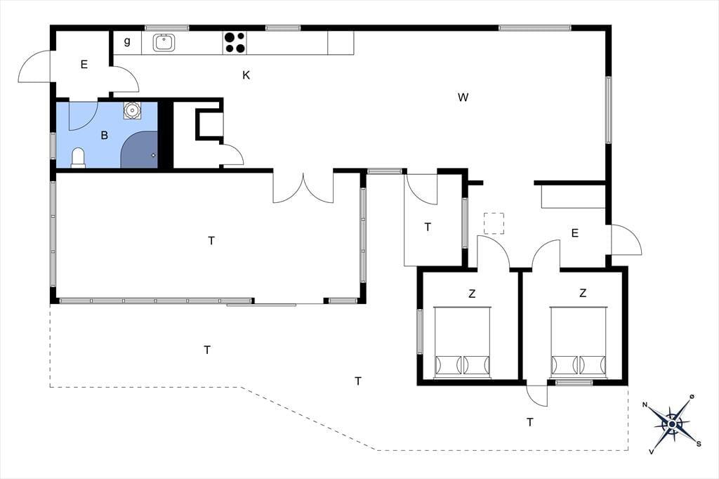
Das Ferienhaus bietet einen Eingangsbereich mit Zugang zur offenen Küche. Hier befinden sich ein Essbereich und eine gemütliche Sitzecke. Von hier aus gelangt man in den schönen Wintergarten. Darüber hinaus bietet das Haus ein Wohnzimmer mit Holzofen und zwei gemütliche Schlafzimmer mit je einem Doppelbett.
Vom Wintergarten aus gelangt man auf die Terrasse und in den Anbau. Dort befinden sich zwei Schlafplätze mit je einem Doppelbett. Das Ferienhaus verfügt über ein Badezimmer mit WC, Dusche und Waschbecken.
Genieße das Leben im Freien
Das Ferienhaus befindet sich auf einem 1000 m² großen Grundstück. Es verfügt über eine schöne Terrasse mit Gartenmöbeln und einem Grill. Neben der schönen Terrasse bietet das Ferienhaus eine Rasenfläche für viel Spaß und Spiel.
Entdecke deine Umgebung
Das Ferienhaus ist nur ca. 250 Meter vom schönen Strand und ca. 1000 Meter vom nächsten Supermarkt entfernt. Das Ferienhaus liegt zentral und ist nicht weit von Marielysts zahlreichen Aktivitäten entfernt, wie zum Beispiel Golf and Fun, dem Bowling Center und Marielyst Golf. Auch Nykøbing F. mit Einkaufsmöglichkeiten, Restaurants und verschiedenen Aktivitäten ist nur eine kurze Fahrt entfernt.
Raumaufteilung
- Schlafzimmer
- Doppelbett
- Schlafzimmer
- Doppelbett
- Anbau
- Doppelbett
Gesamte Ausstattung
-
Hausinfo.
-
Anzahl Erw.6
-
Anzahl Haustiere2
-
Baujahr1967
-
Dusche
-
Grundstücksgröße1219 m²
-
Hausareal84 m²
-
Renovierungsjahr2003
-
WC
-
-
Entfernungen
-
Abstand Einkauf1 km
-
Entfernung Strand250 m
-
-
Energie/Heizung
-
Elektroheizung
-
Kaminofen
-
-
Küchengeräte
-
Abzugshaube
-
Backofen
-
Kochplatten
-
Kühlschrank m/Gefrierfach
-
Mikrowelle
-
Wasserkocher
-
-
Multimedien
-
Chromecast
-
WI-FI
-
-
Draußen
-
Gartenmöbel
-
Grill
-
Liegestühle
-
Parken auf dem Grundstück
-
Sonnenschirm
-
Terrasse
-
-
Diverse
-
Offene Küche
-
-
Regeln
-
Aufladung von Elektroautos nicht erlaubt
-
Rauchen verboten
-
-
Preis inbegriffen
-
Endreinigung inkl.
-
Kurzurlaub
Preise und Kalender
Kalender
Preis
- Ankunft
- Abreise
- Dauer
- 1 Woche
