Gemütliches Stadthaus mit großem Garten in Vrensted
Ferienhaus - 6 Personen - Vrenstedvej - 9480 - Lökken
Alternative Objekte
In der Nähe (4)6 Personen
Übersicht
Objekt Nr.: 121-11-4983
7 Übernachtungen
Ab
EUR 357,-
Reinigung auf Wunsch: EUR 190,-
Gemütliches Stadthaus mit großem Garten und moderner Ausstattung in Vrensted, ideal für Familien und Haustiere.
- Schlafzimmer 3
- Badezimmer 2
- Wohnfläche 145 m²
- Grundstück 1.202 m²
- Haustiere 2
- Kurzurlaub möglich Nein
- Entfernung Wasser 5.300 m
- Einkaufen 500 m
- Internet Ja
- Satelliten-/Kabel TV Ja
- Eingezäunter Bereich Ja
- Waschmaschine Ja
- Geschirrspüler Ja
- Nichtraucher Ja
- Klimafreundlich Ja
Beschreibung
Im kleinen Dorf Vrensted liegt dieses ältere aber gepflegte Stadthaus mit einem schönen, geschlossenen Garten.
Das Ferienhaus eignet sich für 6 Personen sowie 1 Kleinkind bis zu 3 Jahren. 1 Schlafplatz eignet sich jedoch nur für größere Kinder (4-11 Jahre). Das Haus hat eine Wohnfläche von 145 m² und wurde 1956 gebaut. 2016 wurde das Haus teilweise renoviert. Es ist erlaubt 2 Haustiere mitzubringen. Es ist eine energiefreundliche Luft-Luft-Wärmepumpe installiert. Es sind alle notwendigen Haushaltsgeräte vorhanden, einschließlich einer Waschmaschine im Keller und Tiefkühlmöglichkeit mit 130 Liter Nutzinhalt. Für die jüngsten Feriengäste ist 1 Kinderhochstuhl vorhanden.
Die Ferienunterkunft liegt auf einem 1202 m² großen Gartengrundstück. Das Grundstück ist eingezäunt. Die Entfernung zum Meer beträgt 5300 m. Die nächste Einkaufsmöglichkeit, ein Ärztehaus und Byens Hus, wo man verschiedene Sporteinrichtungen kostenlose benutzen kann, liegen 500 m entfernt.
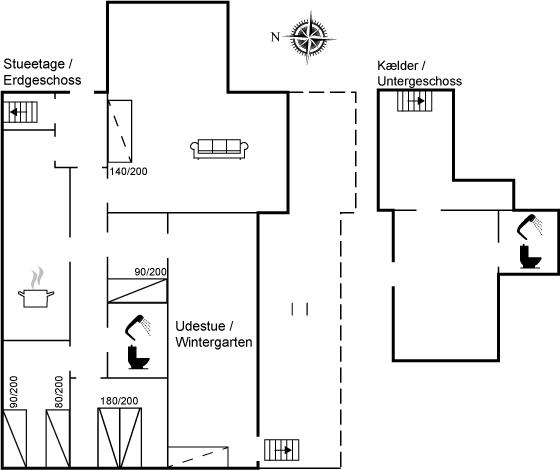
Es stehen ein 20 m² Terrassenareal sowie ein großer Wintergarten zur Verfügung. Geräteraum. Trampolin. Parkplatz auf dem Grundstück.
Die Schlafplätze verteilen sich auf 3 Schlafräume. 2 Schlafplätze in einem Doppelbett. 3 Schlafplätze in Einzelbetten.2 Schlafplätze auf Schlafcouchen (einzeln). Ferner steht ein Kinderbett zur Verfügung.
Die Küche ist mit Kühlschrank, 4 Keramik-Kochfelder, Umluftofen, Mikrowelle sowie Geschirrspüler ausgestattet.
Es gibt 2 Badezimmer mit Duschnische und 2 Toiletten. Fußbodenheizung in dem einen Badezimmer.
In der Ferienunterkunft gibt es Tischtennis und Tischfußball sowie ein Herrenfahrrad, das genutzt werden kann. Weiter gibt es einen Fernseher, Radio und CD-Player. Mindestens 1-3 deutsche, 4 dänische, 1-3 schwedische und 1-3 norwegische Fernsehsender. Es ist WLAN via Glasfasernetz (1000/1000 Mbit) installiert.
Wissenswertes
Keine Vermietung an Jugendgruppen, in denen alle 15-25 Jahre sind. Rauchen ist nicht zugelassen. Bei Nichtbeachtung dieses Verbots wird eine Gebühr von mindestens EUR 420,- erhoben.
Wissenswertes
Keine Vermietung an Jugendgruppen, in denen alle 15-25 Jahre sind. Rauchen ist nicht zugelassen. Bei Nichtbeachtung dieses Verbots wird eine Gebühr von mindestens EUR 420,- erhoben.
Unsere Gästebewertungen Externe Bewertungen
Gesamte Ausstattung
-
Bitte beachten
-
Keine Jugendgruppen auf Anfrage
-
Rauchen ist verboten
-
-
Draußen
-
Eingezäuntes Grundstück
-
Geschäft500 m
-
Größe des Grundstücks1202 m²
-
Landschaftsgarten
-
Meer5,3 km
-
Parkplatz beim Haus
-
Terrasse20 m²
-
Trampolin
-
Werkzeugschuppen
-
Wintergarten
-
-
Einrichtung
-
Anzahl der Kinder 4-11 Jahre1
-
Anzahl Erwachsene inkl. 4-11 Jahre6
-
Anzahl Kinder (0-3 Jahre)1
-
Baujahr1956
-
Bebaute Fläche145 m²
-
Ferienhaus
-
Gefrierkapazität (Anzahl Liter)130
-
Haustiere2
-
Hochstuhl1
-
Jahr der Renovierung2016
-
Waschmaschine1
-
Wärmepumpe
-
Wärmepumpe Luft zu Luft
-
-
Hobbyraum
-
Tischfussball
-
Tischtennis
-
-
Küche
-
Anzahl der Keramikkochplatten4
-
Heißluftofen1
-
Kühlschrank1
-
Mikrowelle1
-
Spülmaschine1
-
-
Multimedien
-
> 3 dänische Sender
-
0-3 deutsche Sender
-
0-3 norwegische Kanäle
-
0-3 schwedische Kanäle
-
Anzahl der Fernseher1
-
CD-Player
-
Herunterladen1000
-
Hochladen1000
-
Internet drahtlos
-
Radio
-
-
Schlafverhältnisse
-
Anzahl der Schlafzimmer3
-
Doppelbett (Anzahl der Schlafplätze)2
-
Einzelbett (Anzahl der Schlafplätze)3
-
Kinderbett1
-
Schlafsofa, Einzelbett (Anzahl der Schlafplätze)2
-
-
WC und Bad
-
Anzahl der Badezimmer2
-
Duschkabine
-
Fußbodenheizung1
-
Toiletten2
-
-
Zugang zur Ferienunterkunft
-
Schlüsselkasten mit Code
-
Preise und Kalender
Kalender
Dauer
Preis
Zeitraum
- Ankunft
- Abreise
- Dauer
- 1 Woche
Personen
Bis zu 6 Personen
Bitte beachten
Ankunftszeit wurde nicht ausgewählt.
