Ferienhaus - 6 Personen - Vestvej - 9492 - Blokhus
Alternative Objekte
In der Nähe (471)Übersicht
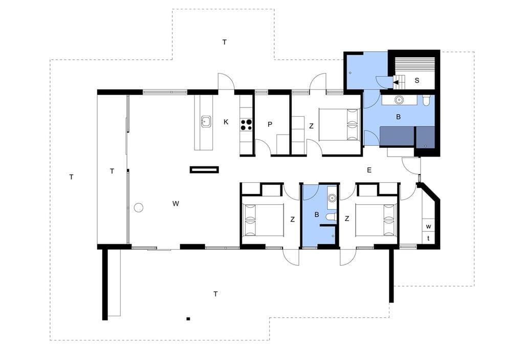
- Schlafzimmer 3
- Badezimmer 2
- Wohnfläche 138 m²
- Grundstück 1.151 m²
- Haustiere Nicht erlaubt
- Kurzurlaub möglich Ja
- Entfernung Wasser 900 m
- Einkaufen 850 m
- Sauna Ja
- Internet Ja
- Satelliten-/Kabel TV Ja
- Kaminofen Ja
- Waschmaschine Ja
- Trockner Ja
- Geschirrspüler Ja
- Nichtraucher Ja
- Ladestation für Elektroauto Ja
- Klimafreundlich Ja
Beschreibung
Was macht für Sie schöne Urlaubstage aus? Ein köstliches Essen im Kreise der Familie, ein ruhiges Stündchen auf der Terrasse, gemütliche Abende am Lagerfeuer, Saunagänge und tägliche Bäder in den blauen Nordseewellen? All dies und vieles mehr bietet Ihnen diese wunderschöne Perle eines Ferienhauses im kleinen Stichweg Vestvej in Blokhus.
Einrichtung
Das im Jahr 2020 erbaute Urlaubsdomizil präsentiert sich Ihnen in schlichtem, aber einladendem Stil mit einer naturbelassenen Holzfassade mit großen Fenstern. Diese sorgen im Hausinneren für einen wunderbaren Lichteinfall und gewähren Ihnen zugleich einen schönen Blick über den Ort und die Dünen. Aus den drei Schlafräumen können Sie bereits früh am Morgen direkt auf die Terrassen treten und ein wenig frische Seeluft genießen. Das größere der beiden vorhandenen Badezimmer ist ebenfalls direkt mit dem Außenbereich verbunden und bietet Ihnen daher das einzigartige Wellness-Gefühl, von der im Inneren befindlichen Badewanne direkt in die Sauna und zur Außendusche gelangen zu können, wenn Sie sich so richtig entspannen möchten. Erholsame Stunden erwarten Sie selbstverständlich auch im großen hellen Aufenthaltsraum, der ebenso wie der Rest der Räumlichkeiten stilvoll eingerichtet ist. Der Wohnraum verwöhnt Sie und Ihre Liebsten unter anderem mit einem romantisch knisternden Kaminofen, einer Fußbodenheizung, einem Flachbild-TV samt Chromecast und einer offenen, gut ausgestatteten Küchenabteilung.
Außenbereich
Auch die Gestaltung der Außenbereiche wurde bis ins kleinste Detail durchdacht. An alle Seiten des Hauses schmiegen sich attraktive Terrassen, auf denen Sie die Stunden unter freiem Himmel so richtig genießen werden. Dank überdachter und offener Terrassenbereiche können Sie frei entscheiden, ob Sie sich von der Sonne verwöhnen lassen oder sich doch lieber in den angenehm kühlen Schatten zurückziehen. Die Gartenmöbeln harmonieren sehr schön mit der Ästhetik des Ferienhauses. Die Außendusche, die von außen zugängliche Sauna, der Grill und die Lagerfeuerstelle laden zu perfekten, unvergesslich schönen Urlaubsstunden in herrlicher Urlaubsumgebung ein.
Lage
Der Blick auf die Dünen wird bei Ihnen sicherlich die Lust auf einen Spaziergang an den Strand wecken. Sie müssen lediglich 900 Meter durch das mit Strandhafer und Heckenrosen bewachsene Ferienhausgebiet zurücklegen, bevor Sie auf dem prachtvollen Sandstrand stehen und über die wogenden Nordseewellen blicken. An sonnigen Tagen können Sie wunderbar in der Nordsee baden. Auch ein langer Spaziergang vor bildschöner Kulisse entlang der Wasserkante zählt zu den unvergesslichen Urlauberinnerungen. Auch der Ortskern des beliebten Badeortes Blokhus ist zu Fuß erreichbar. Im Ort laden um den Marktplatz herum zahlreiche Cafés, Restaurants und interessante Geschäfte zum Bummeln und Verweilen ein. Blokhus besticht insbesondere während der Sommermonate mit seiner entspannten Urlaubsstimmung. Schöne Urlaubstage können Sie auch im nahegelegenen Waldgebiet Blokhus Klitplantage verbringen, in dem sich der Gateway Blokhus, das Zentrum für aktive Naturerlebnisse, bereits auf Ihren Besuch freut. Der Gateway Blokhus umfasst einen grandiosen Naturspielplatz, einen Bolzplatz, einen Fitnesspfad, Wanderwege, Grillhütten und vieles mehr. Auch Besuche des tollen Vergnügungsparks Fårup Sommerland, der herrlichen Gartenanlagen von Anne Justs Have und des Skulpturparken sollten unbedingt auf Ihrem Urlaubsprogramm stehen.
Gesamte Ausstattung
-
Hausinfo.
-
2 x Dusche
-
2 x WC
-
Anzahl Erw.6
-
Badewanne
-
Baujahr2020
-
Grundstück / Naturgrund1151 m²
-
Hausareal138 m²
-
Naturblick
-
Sauna
-
-
Entfernungen
-
Entfernung Einkauf / Ganzjahresgeschäft850 m
-
Entfernung Restaurant800 m
-
Entfernung Strand / Sandstrand900 m
-
Entfernung zum Golfplatz2,9 km
-
-
Energie/Heizung
-
Geothermische Heizung
-
Kaminofen
-
Wärmepumpe / Ohne KühlungGeothermische Heizung
-
-
Küchengeräte
-
Abzugshaube
-
Backofen
-
Bügelbrett
-
Bügeleisen
-
Gefriertruhe
-
Kaffeemaschine
-
Kochplatten
-
Kühlschrank
-
Mikrowelle
-
Spülmaschine
-
Waschmaschine
-
Wasserkocher
-
Wäschetrockner
-
-
Multimedien
-
Chromecast
-
Deutsche KanäleDer Fernsehempfang ist auf einige wenige deutsche Programme begrenzt
-
Dän. TV
-
Gratis Wi-Fi - Über 20 Mbit
-
Kabel TV
-
Norw. TV
-
Schwedisches TV
-
TV
-
-
Extra
-
Golf-Urlaub
-
-
Draußen
-
2 x Terrasse / Offene Terrasse
-
Dusche im Freien
-
Gartenmöbel
-
Grill
-
Liegestühle4
-
Parken auf dem Grundstück
-
Überdachte Terrasse
-
-
Diverse
-
2 x Doppelbett 140x200 CM
-
7 x Fußbodenheizung
-
Doppelbett 180x200 cm
-
-
Regeln
-
Aufladen des Elektroautos erlaubt / CEE-Stecker mit 16 Ampere vorhanden, Kabel mitbringen
-
HAUSTIER NICHT ERLAUBT
-
Rauchen verboten
-
-
Preis inbegriffen
-
Endreinigung inkl.
-
Feuerholz inkl.
-
-
ALT
-
RadioBluetooth
-
Kurzurlaub
Preise und Kalender
Kalender
Preis
- Ankunft
- Abreise
- Dauer
- 1 Woche
