Ferienwohnung - 4 Personen - Vestergade 3 Ap. - Havneby - 6792 - Römö
Alternative Objekte
In der Nähe (454)Übersicht
- Schlafzimmer 2
- Badezimmer 1
- Wohnfläche 64 m²
- Grundstück 20.000 m²
- Haustiere 1
- Kurzurlaub möglich Ja
- Entfernung Wasser 2.500 m
- Einkaufen 400 m
- Internet Ja
- Satelliten-/Kabel TV Ja
- Wasserblick Ja
- Waschmaschine Ja
- Geschirrspüler Ja
- Nichtraucher Ja
- Klimafreundlich Ja
Beschreibung
Es gibt viele gute Gründe, dieses Ferienhaus zu wählen, wenn du das nächste Mal eine Urlaubsreise nach Rømø unternehmen möchtest. Erstens ist das Haus hell und geschmackvoll eingerichtet, und draußen kannst du das sonnige Wetter und den Blick auf das Wattenmeer von der Terrasse aus genießen. Ein weiteres Plus ist die gute zentrale Lage in Havneby, umgeben von zahlreichen Aktivitätsmöglichkeiten.
Willkommen in deinem Ferienhaus
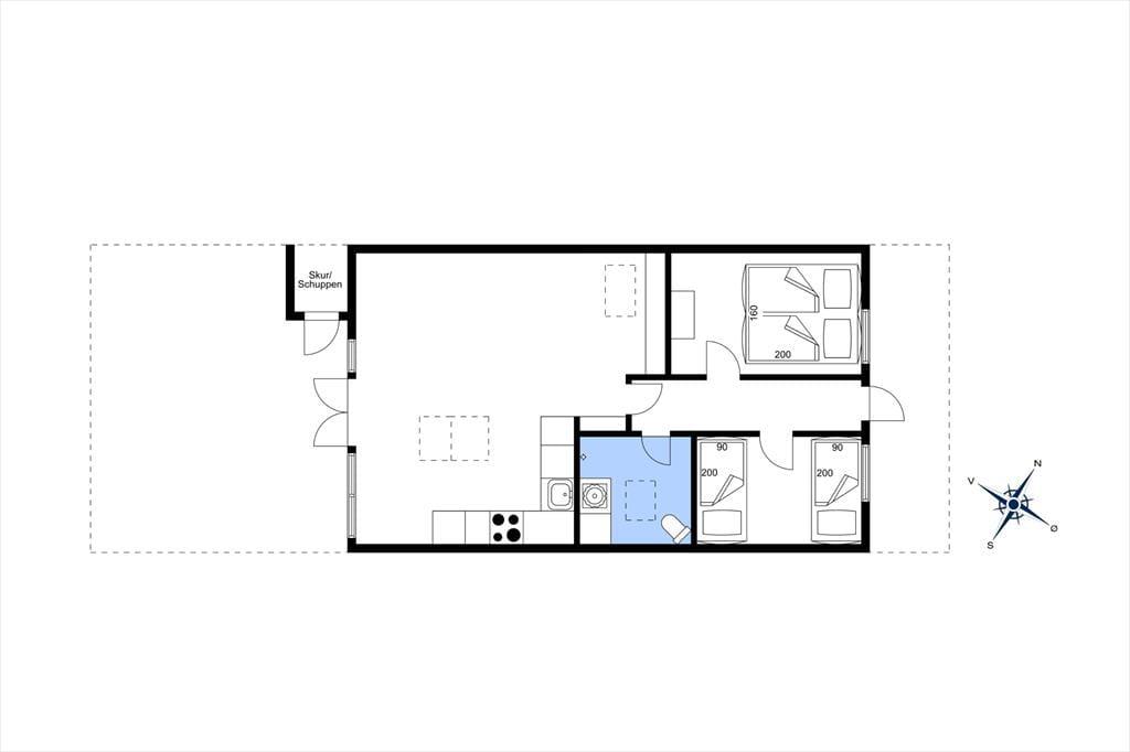
Das Ferienhaus ist genauer gesagt ein Reihenhaus, das 2013 liebevoll renoviert wurde. Dank der erfolgreichen Modernisierung präsentieren sich alle Zimmer auf einladende Weise mit schönen Möbeln und gemütlichen Details. Im Wohnzimmer, dem größten Raum des Hauses, ist das Licht sehr gut, denn hier gibt es ein großes Fenster nach Westen und ein Oberlicht. In den Raum ist eine moderne Küche integriert, die zusätzlich mit einem Esstisch und mehreren bequemen Sitzmöbeln ausgestattet ist. Der Grundriss besteht auch aus zwei Schlafzimmern und einem Badezimmer mit Dusche und Waschmaschine.
Genieße das Leben im Freien
An jedem Ende des Hauses befindet sich eine private Terrasse, sodass du dein Urlaubsleben leicht nach draußen verlegen kannst, sobald die Sonne scheint. Eine Terrasse ist nach Osten ausgerichtet und eignet sich daher gut als Morgenterrasse, während die nach Westen ausgerichtete Terrasse größer ist und daher zu anderen Tageszeiten eine naheliegende Wahl darstellt. Von der Westterrasse aus kannst du auf die flache Küstenlandschaft blicken und beobachten, wie die Fähre langsam auf dem Wattenmeer vorbeifährt. Du hast auch einen guten Überblick auf den Spielplatz, der sich in der Nähe des Hauses befindet – so können die Kinder auf dem Spielplatz spielen, während du in den Gartenmöbeln sitzt.
Entdecke deine Umgebung
Neben dem Spielplatz gehören auch ein Tennisplatz, ein Ballplatz, eine Tischtennisplatte und eine Petanquebahn zu den gemeinsamen Einrichtungen. Hier gibt es also viel zu tun – und es wird natürlich auch empfohlen, das Wattenmeer, das auf der Liste des UNESCO-Weltnaturerbes steht, genauer zu betrachten.
Raumaufteilung
- Schlafzimmer
- Doppelbett - 160 x 200
- Schlafzimmer
- Einzelbett - 90 x 200
- Einzelbett - 90 x 200
Unsere Gästebewertungen Externe Bewertungen
Gesamte Ausstattung
-
Hausinfo.
-
Anzahl Erw.4
-
Anzahl Haustiere1
-
Baujahr1984
-
Dusche
-
Grundstück / Gemeinschaftsgrund20000 m²
-
Hausareal64 m²
-
Meerblick
-
Renovierungsjahr2013
-
WC
-
-
Entfernungen
-
Entfernung Einkauf / Ganzjahresgeschäft400 m
-
Entfernung Restaurant200 m
-
Entfernung Strand / Sandstrand2,5 km
-
Entfernung zum gemeinsamen Spielplatz30 m
-
Entfernung zum Golfplatz300 m
-
-
Energie/Heizung
-
Elektroheizung
-
Wärmepumpe / Ohne Kühlung
-
-
Küchengeräte
-
Abzugshaube
-
Backofen
-
Gefriertruhe
-
Kaffeemaschine
-
Kochplatten4
-
Kühlschrank
-
Spülmaschine
-
Waschmaschine
-
Wasserkocher
-
-
Multimedien
-
Apple TV
-
Deutsche KanäleARD, ZDF, N3
-
Dän. TV
-
Gratis Wi-Fi - Über 20 Mbit
-
Kabel TV
-
TV
-
-
Extra
-
Golf-Urlaub
-
-
Draußen
-
Gartenmöbel
-
Gemeinsamer Parkplatz
-
Grill
-
Liegestühle2
-
Sonnenschirm1
-
Terrasse
-
-
Diverse
-
Markierte Wanderwege in der Nähe
-
-
Regeln
-
Aufladung von Elektroautos nicht erlaubt
-
Haustiere: nur Hunde erlaubt
-
Rauchen verboten
-
-
Preis inbegriffen
-
Endreinigung inkl.
-
Wasser inkl.
-
-
ALT
-
Radio
-
Kurzurlaub
Preise und Kalender
Kalender
Preis
- Ankunft
- Abreise
- Dauer
- 1 Woche
