Ferienhaus - 4 Personen - Grønningen 54 A - Enö - 4736 - Karrebäksminde
Alternative Objekte
In der Nähe (91)Übersicht
- Schlafzimmer 3
- Badezimmer 1
- Wohnfläche 51 m²
- Grundstück 216 m²
- Haustiere Nicht erlaubt
- Kurzurlaub möglich Ja
- Entfernung Wasser 200 m
- Einkaufen 1 km
- Internet Ja
- Nichtraucher Ja
Beschreibung
Genieße schöne Urlaubstage in diesem modernisierten Ferienhaus, das mit echter dänischer Ferienhausatmosphäre verzaubert. Mit seiner Platzierung nah an einem schönen Badestrand bietet dir das Haus alles, was du für einen erholsamen Urlaub im Kreise deiner Lieben benötigst.
Willkommen in deinem Ferienhaus
Der helle, einladende Aufenthaltsraum setzt sich offen aus dem Wohnraum mit komfortablen Sitzgelegenheiten und dem Essplatz zusammen. Du genießt direkten Zugang zu einer sonnenverwöhnten, gen Süden ausgerichteten Holzterrasse. Die offene Küche bietet alles Notwendige - unter anderem einen Kühlschrank mit Gefrierfach und einen Herd mit einem Backofen. Im geräumigen Schlafraum empfängt dich ein komfortables Hästen Superia-Doppelbett. Die beiden anderen Schlafräume verfügen über Etagenbetten für Kinder und Gäste. Ein Badezimmer mit einer Duschkabine, einem Waschbecken und einem WC ist vorhanden. Falls sich das Wetter nicht von seiner schönsten Seite zeigt, machst du es dir mit deinen Lieben vor dem Fernseher mit Apple TV gemütlich oder genießt Musik aus dem eingebauten Sonos-System. Schnelles Internet garantiert dir zu jeder Zeit die 70/70 Mbit-Glasfaserleitung.
Genieße das Leben im Freien
Dank der tollen Terrasse verschmelzen Hausinneres und Außenbereich an sonnigen Tagen förmlich miteinander. Unter freiem Himmel bietet sich dir alles, was du für gelungene Urlaubstage brauchst. Ein Gartentisch mit Stühlen und Bänken, Sonnenliegen und zusätzliche Stühle stehen für deine Familie bereit. Auf dem Grundstück kannst du problemlos 2-3 Pkw parken.
Entdecke deine Umgebung
Dein Ferienhaus liegt in einem ruhigen Gebiet, nicht weit von Enøs bestem Badestrand entfernt. Lediglich 200 Meter trennen dich vom Strand und 1.000 Meter vom lebendigen Fischerort Karrebæksminde. Du genießt demnach nicht nur die Ruhe der unberührten Natur, sondern zugleich die entspannte Atmosphäre des kleinen Urlaubsortes. Dich erwarten ein toller Sandstrand, an dem Rettungsschwimmer im Sommer für maximale Badesicherheit sorgen, mehrere gemütliche Lokalitäten, Verkaufsstände und Geschäfte. Problemlos erledigst du deine täglichen Einkäufe oder lässt dich mit einem köstlichen Mittagessen verwöhnen.
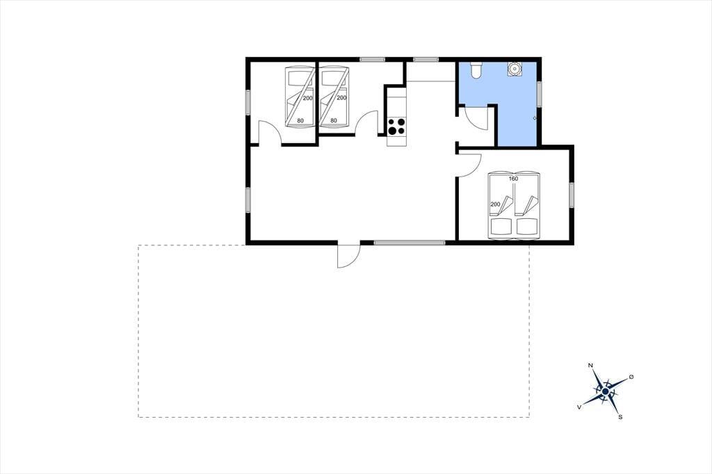
Raumaufteilung
- Schlafzimmer
- Etagenbett
- Schlafzimmer
- Doppelbett
- Schlafzimmer
- Etagenbett
Unsere Gästebewertungen Externe Bewertungen
Gesamte Ausstattung
-
Hausinfo.
-
Anzahl Erw.4
-
Baujahr1969
-
Dusche
-
Grundstücksgröße216 m²
-
Hausareal51 m²
-
Naturblick
-
Renovierungsjahr2020
-
WC
-
-
Entfernungen
-
Abstand Einkauf1 km
-
Entfernung Bahnhof/Zug10 km
-
Entfernung Bus300 m
-
Entfernung Flughafen90 km
-
Entfernung Fähre80 km
-
Entfernung Küste200 m
-
Entfernung Meer200 m
-
Entfernung Restaurant1 km
-
Entfernung Strand200 m
-
-
Energie/Heizung
-
Elektroheizung
-
-
Küchengeräte
-
Backofen
-
Herd
-
Kaffeemaschine
-
Kühlschrank m/Gefrierfach
-
Wasserkocher
-
-
Multimedien
-
Apple TV
-
TV
-
WI-FI
-
-
Draußen
-
Gartenmöbel
-
Grill
-
Liegestühle
-
Parken auf dem Grundstück
-
Sonnenschirm
-
Terrasse
-
-
Diverse
-
5 x Holz-/Parkettboden
-
Offene Küche
-
-
Regeln
-
Aufladung von Elektroautos nicht erlaubt
-
HAUSTIER NICHT ERLAUBT
-
Rauchen verboten
-
-
Preis inbegriffen
-
Endreinigung inkl.
-
Kurzurlaub
Preise und Kalender
Kalender
-
März 2026
Mo Di Mi Do Fr Sa So 9 1 10 2 3 4 5 6 7 8 11 9 10 11 12 13 14 15 12 16 17 18 19 20 21 22 13 23 24 25 26 27 28 29 14 30 31 -
April 2026
Mo Di Mi Do Fr Sa So 14 1 2 3 4 5 15 6 7 8 9 10 11 12 16 13 14 15 16 17 18 19 17 20 21 22 23 24 25 26 18 27 28 29 30 19
Preis
- Ankunft
- Abreise
- Dauer
