Ferienhaus - 6 Personen - Vesterhavsgade - Vorupör - 7700 - Thisted
Alternative Objekte
In der Nähe (436)Übersicht
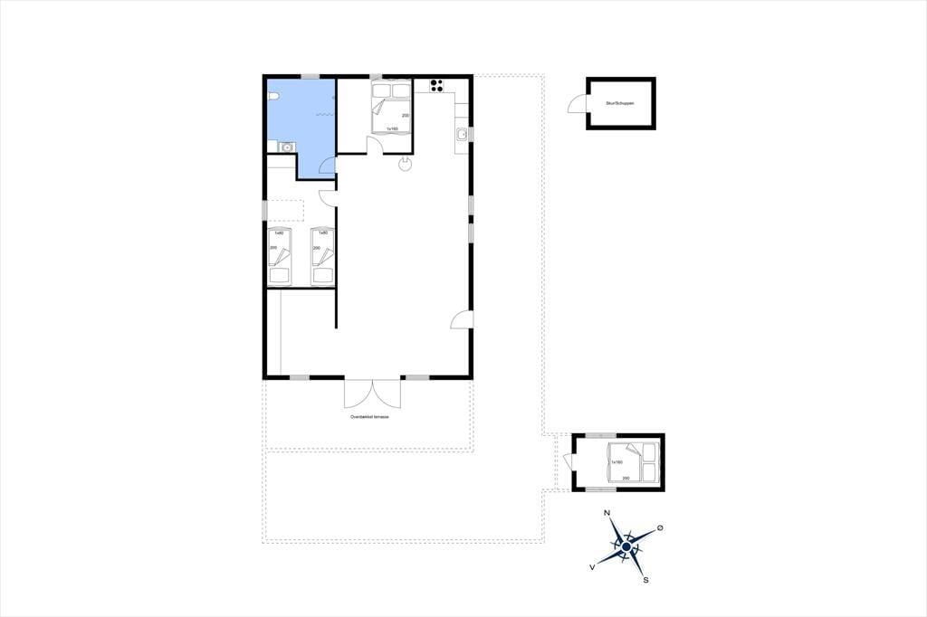
- Schlafzimmer 2
- Badezimmer 1
- Wohnfläche 60 m²
- Grundstück 800 m²
- Haustiere Nicht erlaubt
- Kurzurlaub möglich Ja
- Entfernung Wasser 940 m
- Einkaufen 80 m
- Internet Ja
- Satelliten-/Kabel TV Ja
- Kaminofen Ja
- Eingezäunter Bereich Ja
- Klimaanlage Ja
- Waschmaschine Ja
- Geschirrspüler Ja
- Nichtraucher Ja
- Klimafreundlich Ja
Beschreibung
Suchst du ein stilvolles Ferienhaus mit einer perfekten Mischung aus Gemütlichkeit, modernem Komfort und fantastischer Lage? In der Vesterhavsgade 56 in Nr. Vorupør findest du eine geschmackvoll eingerichtete Unterkunft, die sowohl drinnen als auch draußen zum Entspannen und Wohlfühlen einlädt – nur einen kurzen Spaziergang von der Nordsee entfernt.
Willkommen in deinem Ferienhaus
Betritt dieses einladende Ferienhaus und spüre sofort die warme, gemütliche Atmosphäre. Die moderne, aber dennoch behagliche Einrichtung schafft den idealen Rahmen für einen erholsamen Urlaub mit Familie oder Freunden. Das offene Wohnkonzept verbindet Küche, Essbereich und Wohnzimmer, sodass das Beisammensein stets im Mittelpunkt steht. An kühleren Tagen sorgt der Kamin mit knisterndem Feuer für eine behagliche Wärme, während die Wärmepumpe zu jeder Jahreszeit für ein angenehmes Raumklima sorgt. Die bequemen Möbel und das skandinavische Design laden zu entspannten Stunden mit einem guten Buch oder einem geselligen Spieleabend nach einem Tag an der frischen Seeluft ein.
Genieße das Leben im Freien
Wenn die Sonne über der Westküste scheint, kannst du das Leben im Freien in vollen Zügen genießen. Die großzügige Terrasse ist perfekt für ein entspanntes Frühstück im Morgenlicht oder einen gemütlichen Grillabend mit Familie und Freunden. Der weitläufige Garten bietet viel Platz für Aktivitäten und Spiele für Groß und Klein. Wenn du Ruhe suchst, kannst du dich mit einem Glas Wein auf eine Liege zurückziehen und den Wellen in der Ferne lauschen. Nur wenige Gehminuten trennen dich vom feinen Sandstrand, wo du barfuß durch die Dünen wandern und den Sonnenuntergang über dem Meer bestaunen kannst.
Entdecke deine Umgebung
Das Ferienhaus liegt im Herzen von Nr. Vorupør – einem charmanten Küstenort, der für seine Mischung aus Natur und entspanntem Strandleben bekannt ist. Hier kannst du erstklassige Surfspots entdecken, durch kleine Geschäfte mit lokalem Kunsthandwerk stöbern oder dich in gemütlichen Cafés niederlassen. Die nahegelegene Nationalpark Thy bietet fantastische Wanderwege durch Dünen und Wälder, während Restaurants mit frischem Fisch aus der Nordsee kulinarische Highlights bieten. Ob du dich entspannen, die Natur erkunden oder aktiv sein möchtest – hier findest du den perfekten Rahmen für einen unvergesslichen Urlaub.
Denk daran, dass du bei uns in immer Bollerwagen, Kinderstühle und Kinderbetten ausleihen kannst. Diese kannst du direkt bei uns im Büro abholen und nach deinem Urlaub wieder zurückbringen.
Ausstattung
-
Hausinfo.
-
Annexgrösse11 m²
-
Anzahl Erw.6
-
Baujahr1959
-
Dusche
-
Grundstück / Naturgrund800 m²
-
Hausareal60 m²
-
Renovierungsjahr2008
-
WC
-
-
Entfernungen
-
Entfernung Einkauf / Ganzjahresgeschäft80 m
-
Entfernung Meer940 m
-
Entfernung Restaurant950 m
-
Entfernung Strand / Sand-, Kieselstrand940 m
-
Entfernung zum Golfplatz11,4 km
-
-
Energie/Heizung
-
Elektroheizung
-
Kaminofen
-
Wärmepumpe / Mit Kühlung
-
-
Küchengeräte
-
Abzugshaube
-
Backofen
-
Gefriertruhe40
-
Kaffeemaschine
-
Kochplatten4
-
Kühlschrank
-
Mikrowelle
-
Spülmaschine
-
Waschmaschine
-
Wasserkocher
-
-
Multimedien
-
Chromecast
-
Deutsche Kanäle
-
Dän. TVInkl. TV2
-
Kostenloses WLAN - mehr als 100 Mbit
-
Parabol
-
TV
-
-
Extra
-
Hochstuhl
-
-
Draußen
-
Eingezäunter Garten
-
Gartenmöbel
-
geschlossener Garten/Grund
-
GrillWeber Kohlelgrill
-
Liegestühle2
-
Offene Terrasse
-
Parken auf dem Grundstück
-
Sandkiste
-
Sonnenschirm1
-
Überdachte Terrasse
-
-
Diverse
-
2 x Doppelbett 1x160x200
-
2 x Einzelbett 1x80x200
-
Doppel-Schlafsofa1x160x200
-
Fußbodenheizung
-
-
Regeln
-
Aufladung von Elektroautos nicht erlaubt
-
HAUSTIER NICHT ERLAUBT
-
Rauchen verboten
-
-
Preis inbegriffen
-
Endreinigung inkl.
-
Gratis Aktivitäten / Tennis
-
Wasser inkl.
-
-
ALT
-
CD Gerät
-
DVD
-
Radio
-
Kurzurlaub
Preise und Kalender
Kalender
-
Februar 2026
Mo Di Mi Do Fr Sa So 5 1 6 2 3 4 5 6 7 8 7 9 10 11 12 13 14 15 8 16 17 18 19 20 21 22 9 23 24 25 26 27 28 10 -
März 2026
Mo Di Mi Do Fr Sa So 9 1 10 2 3 4 5 6 7 8 11 9 10 11 12 13 14 15 12 16 17 18 19 20 21 22 13 23 24 25 26 27 28 29 14 30 31
Preis
- Ankunft
- Abreise
- Dauer
