Ferienhaus - 6 Personen - Kløften - Sandersvig - 6100 - Haderslev
Alternative Objekte
In der Nähe (41)Übersicht
- Schlafzimmer 3
- Badezimmer 1
- Wohnfläche 84 m²
- Haustiere 2
- Kurzurlaub möglich Nein
- Entfernung Wasser 200 m
- Einkaufen 6 km
- Internet Ja
- Kaminofen Ja
- Waschmaschine Ja
- Geschirrspüler Ja
- Nichtraucher Ja
Beschreibung
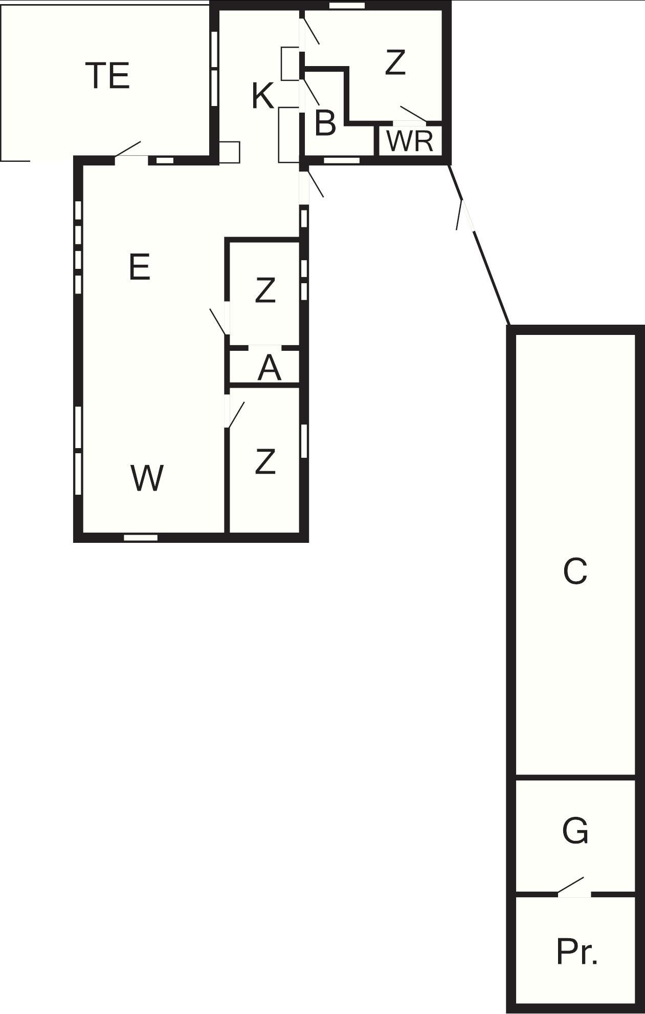
Ganz nah am Strandufer gelegenes, gemütliches Ferienhaus bei Sandersvig, mit herrlicher Aussicht über den Fjord. Das traditionelle Ferienhaus bietet wohnlichen Charme. Es hat einen offenen Küchen-/Wohnbereich mit TV und Holzofen für kühlere Abende. Außerdem gibt es 3 Schlafzimmer und ein schönes Badezimmer im Haus. Draußen auf der Terrasse stehen ein Grill und Gartenmöbel zur Verfügung und die Rasenfläche lädt zum Ballspielen etc. ein.
Das Ferienhaus liegt ungestört am Ende einer Straße und in direkter Nachbarschaft von einem herrlichen Laubwald. Nur etwa 200 m vom Haus aus gelangt man zu einem schönen, kinderfreundlichen Sandstrand.
1 Wohnz.: Holzofen, TV
3 Schlafz.: (1DB)+(2K)+(1DB)
Küche: Hochstuhl, E-Herd, Kühl-Gefrier-Kombi, Gefriertruhe 1-59 l., Mikrow., Kaffeem., Spülm.
Bad: Waschm., WC, Waschb., Dusche
1 Außenbereich: Gartenmöbel
Und: E-Heiz., Garten 1228 m2, reizvolle Lage, Nichtraucherhaus
- Das Ferienhaus steht Ihnen am Anreisetag ab 16:00 Uhr zur Verfügung.
- Die Schlüsselübergabe findet am Haus statt.
- Dieses Haus ist Smart-Lock-fähig
Unsere Gästebewertungen Externe Bewertungen
Gesamte Ausstattung
-
Badezimmer
-
Dusche
-
Waschbecken
-
WC
-
-
Diverse
-
Anzahl Badezimmer1
-
Anzahl Schlafzimmer3
-
Baujahr1969
-
Deutsche Kanäle
-
Haustier erlaubt
-
Hoch Geschwindigkeits Internet
-
Hochstuhl
-
Internet
-
Nationales Fernsehen
-
Nichtraucher
-
Renoviert1984
-
Wohnfläche in m²84 m²
-
-
Draußen
-
Bademögilchkeiten (Badebrücke)
-
Bademöglichkeiten (Sandstrand)
-
Gartenmöbel
-
-
Drinnen
-
Kamin / Holzofen
-
TV
-
Waschmaschine
-
-
Entfernung
-
Einkauf6 km
-
Küste200 m
-
Restaurant1,4 km
-
-
Küche
-
Elektroherd
-
Gefriertruhe 1-59 L
-
Kaffeemaschine
-
Kühl-/Gefrierschrank
-
Mikrowelle
-
Spülmaschine
-
Preise und Kalender
Kalender
Preis
- Ankunft
- Abreise
- Dauer
- 1 Woche
