Gemütliches Ferienhaus mit Meerblick in Binderup
Ferienhaus - 6 Personen - Kausvej - Binderup - 6091 - Bjert
Alternative Objekte
In der Nähe (170)6 Personen
Übersicht
Objekt Nr.: 121-61-6245
7 Übernachtungen
Ab
EUR 449,-
Reinigung auf Wunsch: EUR 173,-
Charmantes Ferienhaus in Binderup mit Meerblick, Kaminofen und eingezäuntem Grundstück für entspannte Urlaubstage.
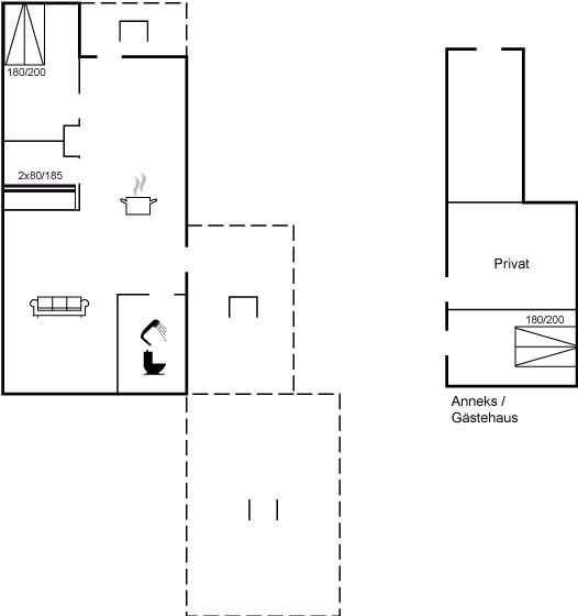
- Schlafzimmer 3
- Badezimmer 1
- Wohnfläche 81 m²
- Grundstück 454 m²
- Haustiere Nicht erlaubt
- Kurzurlaub möglich Ja
- Entfernung Wasser 50 m
- Einkaufen 6.500 m
- Internet Ja
- Kaminofen Ja
- Wasserblick Ja
- Eingezäunter Bereich Ja
- Geschirrspüler Ja
- Nichtraucher Ja
- Klimafreundlich Ja
Beschreibung
Nur einen Steinwurf vom Wasser entfernt liegt dieses schöne Ferienhaus im herrlichen Binderup. Mit seiner warmen und gemütlichen Atmosphäre bietet es den idealen Rahmen für einen erholsamen Urlaub. Das Haus ist für bis zu sechs Personen eingerichtet und vermittelt sofort ein Gefühl von Zuhause. Vom Haus aus hast du einen Blick auf das Meer und den schönen Strand – die Lage macht es dir leicht, schnell ins Wasser zu springen oder einen ruhigen Moment mit Aussicht auf das Meer zu genießen.
Sowohl drinnen als auch draußen wurde viel Wert auf Details gelegt. Der Eigentümer des Hauses hat Materialien und Möbel sorgfältig ausgewählt, um ein wunderschönes Ferienambiente zu schaffen. Hier kannst du ganz leicht zur Ruhe kommen, entspannen und einfach die gemeinsame Zeit genießen – egal, ob ihr euch zu den Mahlzeiten versammelt, die Sonne auf der Terrasse genießt oder die schöne Umgebung erkundet.
Einrichtung
Das Ferienhaus eignet sich für 6 Personen. Die Ferienunterkunft hat eine Wohnfläche von 81 m² und wurde 1997 gebaut. 2024 wurde die Ferienunterkunft renoviert. Haustiere dürfen nicht mitgebracht werden. Die Ferienunterkunft ist mit energiefreundlicher Luft-Luft- Wärmepumpe ausgestattet. Tiefkühlmöglichkeit mit 30 Liter Nutzinhalt. Es gibt außerdem einen Kaminofen.
Draußen
Die Ferienunterkunft liegt auf einem 454 m² großen Naturgrundstück. Das Grundstück ist eingezäunt. Die Entfernung zum Meer beträgt 50 m. Die nächste Einkaufsmöglichkeit liegt 6500 m entfernt. Es steht ein offenes Terrassenareal zur Verfügung. Außerdem gibt es überdachte Terrasse.Lagerfeuerstelle. Es steht ein Grill zur Verfügung. Parkplatz auf dem Grundstück.
Schlafverhältnisse
Die Schlafplätze verteilen sich auf 3 Schlafräume. 4 Schlafplätze in Doppelbetten. 2 Schlafplätze in einem Etagenbett. 2 von diesen Schlafplätzen befinden sich im Gästehaus.
Küche
Die Küche ist mit Kühlschrank ausgestattet. Außerdem gibt es 4 Induktions-Kochzonen, Umluftofen, Mikrowelle, Airfryer, Mixer sowie Geschirrspüler.
WC und Bad
Es gibt 1 Badezimmer mit Duschnische und 1 Toilette.
Multimedien
1 Smart-TV. Radio. 1-3 dänische Fernsehsender. 1-3 schwedische Fernsehsender. 1-3 deutsche Fernsehsender. Es steht kabellose Internetverbindung zur Verfügung.
Wissenswertes
Keine Vermietung an Jugendgruppen, in denen alle 15-25 Jahre sind. Rauchen ist nicht zugelassen. Bei Nichtbeachtung dieses Verbots wird eine Gebühr von mindestens EUR 420,- erhoben.
Einrichtung
Das Ferienhaus eignet sich für 6 Personen. Die Ferienunterkunft hat eine Wohnfläche von 81 m² und wurde 1997 gebaut. 2024 wurde die Ferienunterkunft renoviert. Haustiere dürfen nicht mitgebracht werden. Die Ferienunterkunft ist mit energiefreundlicher Luft-Luft- Wärmepumpe ausgestattet. Tiefkühlmöglichkeit mit 30 Liter Nutzinhalt. Es gibt außerdem einen Kaminofen.
Draußen
Die Ferienunterkunft liegt auf einem 454 m² großen Naturgrundstück. Das Grundstück ist eingezäunt. Die Entfernung zum Meer beträgt 50 m. Die nächste Einkaufsmöglichkeit liegt 6500 m entfernt. Es steht ein offenes Terrassenareal zur Verfügung. Außerdem gibt es überdachte Terrasse.Lagerfeuerstelle. Es steht ein Grill zur Verfügung. Parkplatz auf dem Grundstück.
Schlafverhältnisse
Die Schlafplätze verteilen sich auf 3 Schlafräume. 4 Schlafplätze in Doppelbetten. 2 Schlafplätze in einem Etagenbett. 2 von diesen Schlafplätzen befinden sich im Gästehaus.
Küche
Die Küche ist mit Kühlschrank ausgestattet. Außerdem gibt es 4 Induktions-Kochzonen, Umluftofen, Mikrowelle, Airfryer, Mixer sowie Geschirrspüler.
WC und Bad
Es gibt 1 Badezimmer mit Duschnische und 1 Toilette.
Multimedien
1 Smart-TV. Radio. 1-3 dänische Fernsehsender. 1-3 schwedische Fernsehsender. 1-3 deutsche Fernsehsender. Es steht kabellose Internetverbindung zur Verfügung.
Wissenswertes
Keine Vermietung an Jugendgruppen, in denen alle 15-25 Jahre sind. Rauchen ist nicht zugelassen. Bei Nichtbeachtung dieses Verbots wird eine Gebühr von mindestens EUR 420,- erhoben.
Ausstattung
-
Ausblick
-
Meerblick vom Ferienhaus
-
Meerblick vom Standort
-
-
Bitte beachten
-
Fokushaus
-
Keine Arbeiter auf Anfrage
-
Keine Jugendgruppen auf Anfrage
-
Rauchen ist verboten
-
-
Draußen
-
Eingezäuntes Grundstück
-
Feuerstelle
-
Geschäft6,5 km
-
Grill1
-
Größe des Grundstücks454 m²
-
Meer50 m
-
Naturstandort
-
Parkplatz beim Haus
-
Terrasse
-
Überdachte Terrasse
-
-
Einrichtung
-
Anzahl Erwachsene inkl. 4-11 Jahre6
-
Baujahr1997
-
Bebaute Fläche81 m²
-
Ferienhaus
-
Gefrierkapazität (Anzahl Liter)30
-
Holzofen1
-
Renovierung2024
-
Wärmepumpe
-
Wärmepumpe Luft zu Luft
-
-
Küche
-
Airfryer1
-
Anzahl der Induktionskochplatten4
-
Heißluftofen1
-
Kühlschrank1
-
Mikrowelle1
-
Spülmaschine1
-
-
Multimedien
-
0-3 deutsche Sender
-
0-3 dänische Kanäle
-
0-3 schwedische Kanäle
-
Anzahl der Fernseher1
-
Herunterladen200
-
Hochladen200
-
Internet drahtlos
-
Radio
-
Smart TV1
-
-
Schlafverhältnisse
-
Anhang (Anzahl der Schlafplätze)
-
Anzahl der Schlafzimmer3
-
Doppelbett (Anzahl der Schlafplätze)4
-
Etagenbett (Anzahl der Schlafplätze)2
-
Schlafmöglichkeit nicht im Schlafzimmer
-
-
WC und Bad
-
Anzahl der Badezimmer1
-
Duschkabine
-
Toiletten1
-
-
Zugang zur Ferienunterkunft
-
Schlüsselkasten mit Code
-
Kurzurlaub
Es besteht eine begrenzte Möglichkeit das ganze Jahr einen Kurzurlaub zu machen, typischerweise ausserhalb der Hochsaison.
Preise und Kalender
Kalender
Dauer
Preis
Zeitraum
- Ankunft
- Abreise
- Dauer
- 1 Woche
Personen
Bis zu 6 Personen
Bitte beachten
Ankunftszeit wurde nicht ausgewählt.
